バリアフリー Accessiblity
| 視覚 Visual Disabilities | 点字ブロック Braille blocks | × |
|---|---|---|
| 点字案内板 Braille plates | × | |
| 聴覚 Hearing Disabilities | 手話対応 Sign language support | × |
| 車いす Wheelchair Access | 車いす対応トイレ付客室 Room with wheelchair accessible toilet | × |
| 車いす対応共用トイレ Wheelchair accessible shared toilet | × | |
| エレベーター Elevator | × | |
| 障害者用駐車場 Handicapped parking space | × | |
| 貸出車いす Free wheelchair service | ○ |
| 子育て Child Care |
ベビーカー貸出 Free baby stroller service | × |
|---|---|---|
| 授乳室 Nursing room | × | |
| 託児室 Baby care room | × | |
| ベビーベッド Infant bed | ○ | |
| ベビーチェア Baby high chair | ○ | |
| オストメイト Stoma Care |
トイレ Restroom Ostomy Toilets | × |
| その他 Further Information | 貸切風呂 Private bathroom | × |
| 個室食対応 Room meal service | × | |
| 特別食対応(できるだけ対応) Special menu service | × | |
| シャワーチェアー貸出 Free shower chair service | ○ | |
| 簡易ベッド貸出 Free bed base service | ○ |
駐車場・館内設備
-
駐車場 Parking
ホテル裏手にあり。一般車36台、大型バス4台駐車可能。
A Parking lot is located behind the hotel, for 36 vehicles and 4 large-sized buses.
正面入り口前スロープ Ramp to Entranceway
幅384cm×長さ291cm、傾斜8度のスロープ有り。車の横づけ可能。
A ramp is 384 cm wide and 291 cm long with an 8-degree slope. Vehicles may stop here when entering and exit hotel.
入口② Entrance 2
センサー式自動スライドドア。入り口幅141cm、段差無し。ドア右手にインターフォン有り。
141 cm wide automatic sliding door without steps. The internal phone is on the left.
フロント Front Desk
カウンター高さ111cm。フロント前テーブルでのチェックイン可能(要事前連絡)。
The front desk is 111 cm high. If check-in is difficult for guests, a lobby table will be used. Please consult the staff.
エレベーター Elevator
正面入り口入って左手。入り口幅80㎝。大きさ:幅93㎝×奥行113㎝。
The entrance is 80 cm wide, and the car is 93 cm wide and 113 cm deep.
エレベーター Elevator
手すり、低操作ボタン、階表示、非常ボタン、インターホン有り。
There is a handrail, an internal-phone, and wheelchair-accessible buttons.
3階客室前廊下 Hallway, Floor3
幅131m。床は毛足の短いカーペットで動きやすい。
The lobby floor (W: 113cm) is carpeted, making for easy wheelchair movement.
売店 Souvenior Shop
フロント横、大浴場手前に有り。
The shop is beside a front desk, in front of a public bath, provide a variety of souvenirs, soft drinks, local beer, and some snacks.
客室
-
301号室(入口) Room 301 (entrance)
入口幅79cm開き戸。段差無し。車いすのままで入室可。
Entrance is a 79 cm wide hinged door without steps. The wheelchair is accessible.
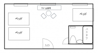
301号室(全景) Room 301
床は毛足の短いカーペット。ベッド幅136cm×高さ56㎝のダブルサイズ。ベッドの間隔は58cm。
The beds are 140 cm wide and 43 cm high with a 90 cm space between them.
301号室(浴室入口) Room 301 (bath room)
浴槽、トイレ、洗面が一体となっている。浴室入口に13㎝の段差有り。床の素材はFRP樹脂。
Bathing space, toilet, and sink are a unit. There's a 13cm step at the entrance.
301号室(浴室内部) Room 301 (bath room)
バスタブ幅121㎝×奥行69㎝、外側高さ56㎝、浴槽内深さ45㎝。浴槽壁面に手すり有り。
The bathtub is 121 cm long, 69 cm wide, and 45 cm deep. The outer height is 45 cm.
305号室(入口) Room 305 (entrance)
入口幅75cm開き戸。段差無し。車いすのままで入室可。
Entrance is a 75 cm wide hinged door without steps. The wheelchair is accessible.
305号室(室内) Room 305
室内は大きい窓が三つあり、日当たりが良く開放的。ベッド幅125cm×高さ56㎝のセミダブル。ベッドの間隔は35cm。
Room 305 has three windows. The beds are 125 cm wide and 56 cm high with a 56 cm space in between.
305号室(浴室) Room 305
浴槽、トイレ、洗面が一体となっている。浴室入口に20㎝の段差有り。床の素材はFRP樹脂。バスタブサイズ等は301号室と同じ。
Bathing space, toilet, and sink unit. There's a 13cm step at the entrance.
グランピングテント(入口) Camp Tent (entrance)
入口幅77cm開き戸。ドア下に段差27㎝の階段2段あり。
Entrance is a 77 cm wide hinged door with two 27 cm steps.
グランピングテント(室内) Camp Tent (Interior)
ベッド幅100㎝×高さ66㎝、ベッドの間隔は24㎝。
The beds are 100 cm wide and 66 cm high with a 24 cm space in between.
大浴場
-
大浴場入口① Public Bath (entrance)
建物正面入り口から廊下をまっすぐの突き当りに開放型入口。入ってすぐ幅85㎝のスライドドア有り。
The public bath is located on the lobby floor beside the souvenir shop.
大浴場脱衣室 Public Bath (changing room)
ダイヤル式ロッカー、ベンチ有り。
There are benches and safety boxes in the changing room.
大浴場洗面台 Public Bath (changing room)
洗面台下高さ74㎝、車いすで足が入る仕様。
Sink is 74cm high. Accessible with wheelchair.
大浴場浴室入口 Entrance to bathing area
入口幅63㎝、手動スライドドア。10㎝の段差あり。
Entrance 63cm wide, sliding manual door, 10cm step.
大浴場浴槽 Public Bath (tub)
洗い場側1段目高さ27cm、2段目高さ25㎝、浴槽縁の広さ20㎝、浴槽内側一段目高さ25cm、2段目28㎝。
From the washing area, the outdoor bath's edge is 52 cm high with 2 steps. There are two steps outside of the tub (25 cm & 28 cm). There are also handrails toward the tub.
大浴場シャワーチェア Public Bath (showering chair)
客室への貸し出し可能。
Please ask the hotel staff if you need to use a shower chair in your room.
トイレ

